| BROCHURE: DE | NL | EN | FR | IT
TREPEDIA
TREPEDIA
DÉMO
GRATUITE
Licensed & Insured Approved

Plan d'étage

Options de représentation souples pour tous les besoins

Le plan d'étage propose différentes options de représentation - des vues simples aux plans détaillés avec cotes.

Voyez comme c'est rapide

Représentation polyvalente

Le plan d'étage permet plusieurs options. Il peut par exemple être affiché sans solives, et en échange avec des mesures des têtes d'échelon. Ou sans marches mais uniquement avec les solives dimensionnées, comme beaucoup de fabricants de métaux le préfèrent.

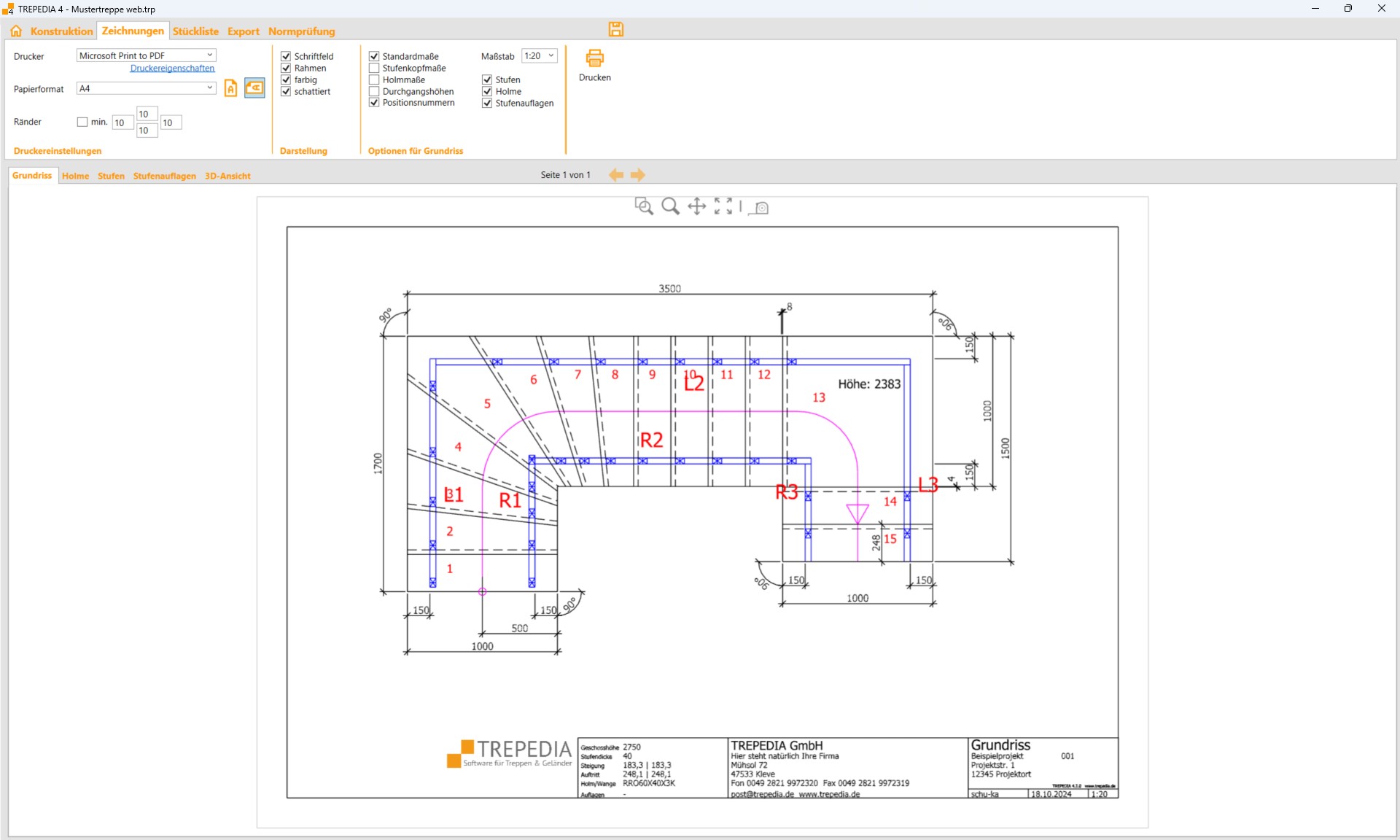
Exemple de plan d'étage TREPEDIA

Exemple d'un plan d'étage détaillé avec toutes les cotes

Plan d'étage standard

  • • Marches et solives
  • • Dimensionnement complet
  • • Vue des balustrades
  • • Distances aux murs

Sans solives

  • • Seulement les marches visibles
  • • Mesures des têtes d'échelon
  • • Représentation claire et aérée
  • • Idéal pour les planificateurs

Seulement les solives

  • • Sans marches
  • • Solives dimensionnées
  • • Pour les fabricants de métaux
  • • Concentré sur la construction

Domaines d'application

Pour les architectes et planificateurs

  • Planification spatiale claire sans détails de construction
  • Mesures des têtes d'échelon pour un calcul précis de l'espace nécessaire
  • Intégration dans les plans de construction

Pour les fabricants de métaux

  • Focus sur la construction et le dimensionnement des solives
  • Représentation adaptée à la fabrication
  • Utilisation directe pour la production